
調度臺圖紙大全及素材下載
調度臺設計方案是調度臺項目完成結果好壞的重要影響因素,而調度臺的設計主要是圖紙設計,包括平面圖紙、cad圖紙、3d圖紙等,中創美提供調度臺圖紙大全及調度臺素材供您下載使用。
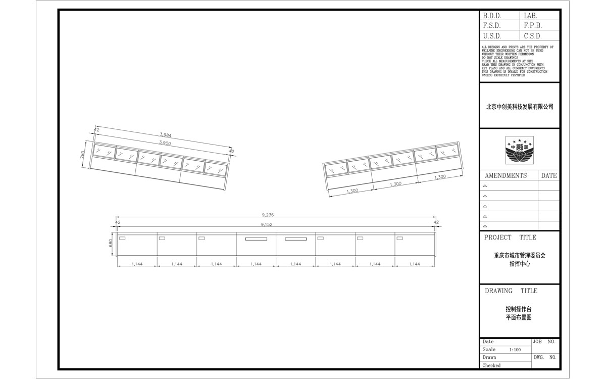
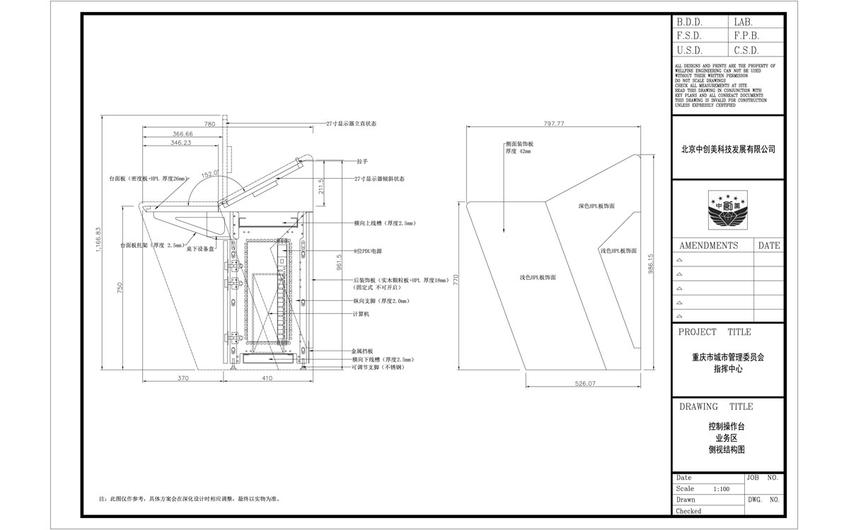
調度臺俯視圖

調度臺模型圖

調度臺效果圖

調度臺圖紙

調度臺cad圖紙

調度臺三維圖

調度臺正視圖

調度臺圖紙下載
調度臺圖紙下載鏈接調度臺素材下載
調度臺素材下載鏈接如您需要更多調度臺圖紙及調度臺設計素材,請聯系中創美,我們將為您提供更完善的技術資料。
更多調度臺圖紙下載-
監控調度臺圖片-監控中心調度臺圖片圖集大全
監控調度中心作為承載這樣一些功能的核心部門,監控調度臺讓調度人員的工作變得更智能、更高效、更健康,下面中創美向您展示監控調度臺圖片-監控中心調度臺圖片圖集大全供您下載。.
-
電力調度臺圖片-國家電網電力局調度中心電力調度操作臺圖片圖
中創美是專業電力調度臺、電力調度操作臺、國家電網調度臺、電力控制臺生產制造高端品牌,在此為您精選電力調度臺圖片-國家電網電力局調度中心電力調度操作臺圖片圖集大全供您欣賞和
-
弧形操作臺圖片-弧形調度臺監控指揮中心控制臺操作臺圖片大全
監控圓弧形操作臺圖片、弧形工作臺圖片、不銹鋼弧形操作臺效果圖片、弧形控制臺圖片、弧形監控臺圖片、機場監控指揮中心控制臺圖片、弧形指揮大廳指揮臺圖片大全供您欣賞。
-
指揮調度臺效果圖概念圖
中創美是專業的調度臺生產廠家,為全國的電力、通信、公安、消防安全、公共交通、安防等行業提供專業的指揮調度臺,并提供專業的設計方案,包括調度臺效果圖、指揮調度臺概念圖等。
-
中創美調度臺產品優勢有哪些?
中創美是調度臺定制生產廠家,擁有多年的調度臺行業從業經驗,從研發設計、定制加工、技術服務等都處于行業領先地位,擁有先進的精密生產設備,高素質的生產員工和經驗豐富的設計